专访|周婉京:像造房子那样写一本小说
对于周婉京来说,写小说像是一场从生活到纸上的实验,在文字里,她不断地去探索和验证最近的思考,试图去厘清自我与世界的关系。在最近出版的小说《造房子的人》里,周婉京写了关于建筑的故事,而建筑对她而言,也是从内向外的求索。
在《造房子的人》里,建筑专业毕业的于晓丹陪同未婚夫张铎赴哥伦比亚大学深造,在纽约街头偶遇青年建筑师廖世奇。异国他乡,两人陷入隐秘的情感,而另一个女孩Kira的出现又使故事的天平发生了摆动。在纽约分别后,于晓丹和张铎回到北京,却又一起踏入了廖世奇和豆田广智在北京开的建筑事务所工作。北京方家胡同的东方剧场,成都青城山上的禅画美术馆,几个人处理着事务所繁杂的项目,以及彼此之间更为棘手的关系。而在周婉京精心搭建的结构里,因为嫉妒和爱失去自我的女性,最终成为了互相救赎的整体。

《造房子的人》
近日,周婉京接受了澎湃新闻的专访。她直言,写《造房子的人》很大程度上受到了她的建筑师丈夫柯卫的影响,在男主角身上,也能找到他的一部分影子,比如两个人都对路易斯·康以及他提出的“静谧与光明”兴趣颇深,身为建筑师,他们都像读“光”那样去读诗。不过,周婉京说,她听过柯卫讲述自己从海外回到中国的从业经历,以及他对于建筑界女性处境的理解,认定他可以是一个好伴侣。

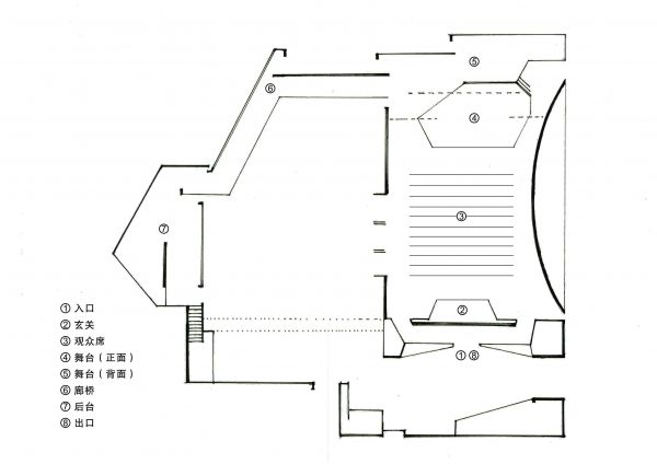
“东方剧场”平面图
翻开《造房子的人》,最开始的折页里有柯卫为这本书画的图,一幅是古希腊神殿遗址的立柱,另外两幅画的是东方剧场的平面图。周婉京说,古希腊立柱相当于小说的大结构,八个章节对应着立柱之间“无光、有光、无光、有光”的变奏,在两百多页的行文里,夹杂着另一半没有道明的留白。而在剧场的平面图上,观众被于晓丹和Kira领着走了一圈,或许会意识到,前后正反旋转的能剧舞台也是两个人彼此身份的交织与互换。
如同那些反复修改的建筑图纸,周婉京写《造房子的人》前后一共改了17版。她像造房子那样去“造”小说,而在这种建造里,空间自然地成为优先于时间的叙事线索,“光”的方向成为了故事的走向。对周婉京而言,空间叙事也许是她在讲故事的时候天然会选择的方式。去年,她的另一部小说《半玉抄》刊登在《收获》长篇小说2023秋卷,故事从日本明治时代艺伎的视角讲述了20世纪的历史。线性历史被切碎,碎片被放大,处于历史边缘的女性浮出表面。在非线性的时空里,光从内往外发射出来。

周婉京
【专访】
在小说里“造房子”
澎湃新闻:《造房子的人》是一本非常重结构的小说,开头到结尾,好像被框定在同一个空间,同一个取景框里面,从空间的重合来讲时间的流动。另一方面,小说围绕着“造房子”,以不同的空间结构来命名每个章节。能否先介绍一下这样的一个结构是怎样形成的?
周婉京:这部小说一共改了17稿,最后的成稿和第一稿有很大的区别。我最初想的是写五章,就像五根柱子的结构,做一个空间叙事的实验小说,然后从结构看这个小说能自然生长到什么程度。我和吴亮老师聊了这种实验的可行性,他告诉我,不必去限定“柱子”的奇偶,不管是五根柱子还是六根柱子,其实你还是藏着另外一根;他说作为艺术的小说,真正能够打动我们的一个点就在于它既真也假,既是也不是。让读者在阅读过程中,能够自然而然地发现隐藏着的其他柱子,吴亮老师的建议给我很大的启发。

古希腊建筑立柱
小说最终的结构对应了古希腊神殿的立柱,实写了八个章节,在章节和“柱子”之间的部分是虚的,特意做的留白。这是大的外部结构,内部结构则是那张剧场的平面图。想在结构上造一个房子,必须要下苦功,把每一个章节甚至每一个人物之间的关系,对应到空间平面图上,让平面图的每个部分,比如入口和玄关、玄关和观众席,它们之间的比例都是恰如其分的。
在我的小说里,人物好像没那么重要,但是人物的关系、尤其是女性人物之间的关系很重要。从短篇《在雨天放一把火》到《造房子的人》与《半玉抄》,我一直想写的是女性成长和女性友谊,最后总会表现成两个女主互相帮助、构成一个人物的故事。在《造房子的人》里,于晓丹和Kira两个人本身是同一个人,就像《半玉抄》里的初子和阿玉互换了身份。于晓丹和Kira的关系也投射到剧场平面图中的入口和出口,两者是相呼应的。
澎湃新闻:如果把写小说和造建筑对比起来看的话,建筑里有关于先有功能还是先有结构的讨论,对你的小说来说,结构和内容哪一个在先?

“东方剧场”立体图彩绘图
周婉京:小说里具体是造了两个房子,一个是北京东城区方家胡同的东方剧场,它的甲方是名叫阿照的日本表演艺术家,另一个是成都青城山伽蓝寺后的禅画美术馆,寺庙的原型是普照寺。这两个建筑都是有功能的:剧场要上演能剧和昆曲,美术馆要展示老贾的收藏,但是它们和功能性过强的大型商业建筑不同,我自己本能的偏好和故事里主角们的选择是合一的。
回到小说的问题,我本人更偏向建筑和形而上的结构。最近我在写一本新的小说《福禄寿》,讲1927年的北京故事,用的是四合院的结构,讲一个家族的起承转合,把时间压薄,聚焦于一瞬间在空间中突发的巨变。我在写小说和处理材料的一个习惯就是我的时间是点性的而不是线性的,这样我就能在空间上尽可能多地去实现延展。时间在我写作的“阁楼”里是凝滞的,一瞬间突发的事情在空间中延展。从这个意义上来说,可以说我的小说是空间叙事,对我来说,空间叙事本身自带跨文化或者跨语言的特征,它是在空间中排列的事物。我在写小说的时候不是为了塑造经典角色或是强调人物背景,而是去触达某种直观的感知。某种意义上我的小说消解了功能性,我不注重叙事,尤其是线性叙事。
小说中有空间小说这一类。哲学家、小说家安·兰德(Ayn Rand)写过一本大部头《源泉》(The Fountainhead),这是一部非常个人主义甚至有点美国梦的建筑小说,讲述了一个理想主义者的毁灭。还有阿兰·罗伯-格里耶(Alain Robbe-Grillet)写的《嫉妒》(La Jalousie),他是哲学家,也是作家,《嫉妒》写的就是一个人在空间中的自白,嫉妒的对象没有出现,只有主体和空间的关系,我觉得这更像是我的小说想去做的事情。我可能会走向安·兰德和罗伯-格里耶的方向。我也希望华语文学有更多实验性的土壤。
澎湃新闻:你在小说里选择空间叙事打破了线性时间的叙事,可以联想到《空间的诗学》里面说到的,空间才是人类意识的居所,人在思考过去的时候实际上是基于空间而非时间上的定位。如果从这个角度来看的话,是否可以说空间叙事的小说其实也符合我们本来对事物的感知?
周婉京:我读康德的《纯粹理性批判》,讲到先验感性的时候,他先讲空间再讲时间,他讲到空间不是从外部经验中抽引出来的经验性的概念,而是一个先天的表象,空间其实是先天直观的,我们把除了内心深处之外的一切都预留给了空间,所有空间有了无限给予的量。我们可以把我们的家作为第二层身体,在此之外还有层层往外的外部空间,我们能想得多远,或者我们和世界是怎样的远近关系,这在康德看来是先天直观的,它不是概念。而时间在某种意义上是内化的东西:如果我不在空间上产生位移,我的内部就感知不到时间,对于时间的直观认识是需要空间带动的。我在写小说的时候,也想去论证康德说得对不对(事实证明他是正确的),所以我先写了《造房子的人》,后写了《半玉抄》,先有空间的小说,再有时间的小说。
从内向外的“理想之城”
澎湃新闻:虽然是时间的小说,但是《半玉抄》的叙事也是反线性的,穿插着复杂的时空。在上一次采访的时候,你聊到了主要是由男作家们构建而成的寻根文学,以及女作家面对历史叙事时候的“次要”地位,但是在《半玉抄》里,能够很明显地看到女性视角对于历史的追索,包括在《造房子的人》里,也有女性对于时代变迁的见证。在讲述历史的时候,你觉得非线性的叙事方式和女性视角有关吗?
周婉京:是的。在《半玉抄》里我本来想写的是老年初子的回忆录,有点像是对《艺伎回忆录》的一种回应。我想从东亚女性的角度去分析,为什么从近现代开始,女性一直处于被动的位置?我在想是什么样的社会、历史和结构,决定了我们当时的处境,而那一刻的处境对我们现在有什么影响?《半玉抄》的叙事的确是有些碎片的,一开始我也想写一部规矩的家族小说,关于几代人的生老病死,写着写着我发现,碎片化的故事其实更符合初子和阿玉本身的叙述模式,两个人角色的互换在这种叙事中也是合理的。《造房子的人》里也是如此。
从《取出疯石》里的《字幕》到这两部长篇小说,都有关于女性身份的反转,这种反转对我来说是很重要的,我想让大家知道,女性的故事是不断在重复的,而且没有被好好地观看。启蒙运动之后奠定了以白人男性视角为重的经典叙事,这种叙事是线性的。近五十年的女性运动以及后人类运动中出现了那么多重要的女性哲学家,就是要消解以白人男性为中心的权力机构的话语体系。身为女性,我们在写作的时候多少都有这样的考虑,不仅是去回应西方的这种经典叙事,也是回应中国传统家族血缘的父权结构。
澎湃新闻:包括写作在内,女性对于这样的现状可以做些什么?
周婉京:我觉得最重要的一个点就是,无论是建筑行业还是教育行业等等,女性需要联合起来,建立一个紧密的社群,互相支持和照顾,大家的声音在一起,就会更多地被听见。我觉得女性关系是家庭式的,彼此共情,相濡以沫,有时候甚至是相依为命,女性是以隐秘的情感相互连接和共享人生的。回到写作,我们身边的女性遭遇只是一个碎片,但如果能从碎片激起更多人的反馈,就可以得到一个更广阔的世界。在这种联系里,重要的是发现“我不是一个人在遭遇”,我可以去找到我的Kira或是于晓丹,就像故事的最后,于晓丹救了Kira,也是两个人互相救赎,Kira也意识到自己需要新的生活。我希望大家能够去寻找自己“另一半”的女性,把自己摆在一个和世界平等的人的位置去审视自我,莫向外求,从自我的力量往外发出光。
澎湃新闻:关于光,从路易斯·康的光,到欲望的光,再到能剧的无光,你是什么时候意识到“光”这个主题的?

路易斯·康设计的索尔克生物研究所(SalkInstituteforBiologicalStudies),周婉京拍摄
周婉京:路易斯·康的光讲的就是古希腊的立柱,也决定了这部小说最外层的结构。欲望的光和小说中的叙事更有关系,讲的是莫向外求,是大家内向的驱动驱使他们去做事,无论是好是坏。能剧的无光是和东方的古老传统有关,日本的能剧以娱神为目的,重视神祇多过现实世界的观众,它向虚空发出光;而中国的昆曲是以娱人为己任,哪怕是唱给神听,也要有人的精气和美感。从路易斯·康开始,慢慢发展成了多维度的光。

意大利西西里岛看古希腊建筑群,周婉京拍摄
澎湃新闻:怎么理解“向内的建筑”?
周婉京:我觉得“内向”还挺像我真实的性格。写作对我来讲,就是一个从内向外发光的情况。而且我意识到,建筑是可以向内开窗户的,这和我们把窗户推开,让光洒进来,看到外面的世界不一样。当我们往内开一个窗户的时候,我们也能从内往外发光。写作对我来说是这样,我对这个世界的思考都是一个由内向外不断打开的过程。
澎湃新闻:《造房子的人》和你的前作《取出疯石》一样,关乎跨文化背景中的人,而这一次有更多的部分是与中国传统文化以及日本文化相关,能剧、禅修、物哀等,对你的影响是怎样的?
周婉京:我一直在进行跨文化和跨语言的实验,2020年写《取出疯石》的时候,我在美国布朗大学做访学,所以对纽约的故事比较着迷,也在思考纽约和北京的联系。这种联系在《造房子的人》第一章里也有体现,但后面的七章完全是关于北京的故事。这七章里还有两个重要人物,豆田先生和阿照,他们都喜欢中国文化,但区别在于,豆田先生就像日语里的平假名,主要书写本土用语,阿照更像是片假名,是洋派的。他们就像“礼物”这个词,可以用“お土産”,一听就是日本本土的,也可以用“プレゼント”,是外来的。
我研究的是中日对比美学,无论是《造房子的人》里的能剧和昆曲的关系,还是《半玉抄》里的宋教仁、明治历史与艺伎传统,都是从中国的视角和中国文化中去思考和日本文化的关系,尤其是日本文化的小而博而精与中国文化的大而美而幽深的区别,以及文化中的词源。比如苹果在日语里念作“lingo”,写作“林檎”,这个词最早是从中国文化传到日本,又回到中国。禅宗也是南宋时由两位四川僧人,无准师范和兰溪道隆在京都和附近地区传播后,在日本开始兴盛。我在教学的时候,很多学生也关心中国尤其是唐宋文化,如何影响了现代的日本,比如他们的物哀和侘寂。去年为《半玉抄》做地图考证的时候,我特意去了京都,有一个天台宗延历寺,我发现上面所有的日语背景板都是先写中文,写受到了怎样的中国影响,认真地写清楚文化是从哪里来的,正本清源,我觉得这是做人做事的道理。
澎湃新闻:你在小说里想要描绘的“理想之城”是什么样的?
周婉京:我觉得我的理想之城,以及我的写作想要再往前走的一个方向,就是和自然有更多的关系。之前余华老师点评我说,我是纯粹写“超级大都市”的作家,没有乡土经验,这和我的经历有关。但我现在处理城市的时候,已经在有意识地融入自然的成分了。这种自然对人的改变就是把人放回人本身的位置,而不仅是超级大都市里被异化的形象。《半玉抄》《造房子的人》里有很多自然的描写,这和我在写《取出疯石》的时候已经不一样了。都市开始向自然转变,这是我想要的城市。
责任编辑:
相关知识
新书|《取出疯石》:以短篇小说勾画边缘人的迷惑与痛苦
作家陈河:像帕慕克写伊斯坦布尔那样写温州
这三位90后女性作家的小说,让余华、潘凯雄刮目相看
专访|95后作家周于旸:“逃离”是一个很难逃离的主题
3本量大质优的小说,一本都市生活,一本穿越国外,一本重生创业
余华:90后作家是个强大群体,要重视他们
她在写作︱专访作家辽京:写作是在做减法而不是加法
专访|卢冶:我想写的是一本关于推理文学“元认知”的书
3本高分小说,一本武侠历史,一本都市脑洞,一本召唤争霸
3本优质小说,一本重生香港,一本无敌仙侠,一本古穿今文娱
推荐资讯
- 1李沁肖战已同居领证? 李沁肖 49355
- 2闫妮老公邹伟平简历 闫妮前 44987
- 3王凯蒋欣承认已有一子? 结 40980
- 4王灿前夫 王灿的第一任老公 36735
- 5汪希玥回北京过年,怎料见到汪 32840
- 6霍启山与霍启仁对嫂子郭晶晶的 29862
- 7张佳宁和宋轶长得像 同属甜美 25931
- 8央视主持孙小梅丈夫曝光,是大 21343
- 960年代,洪秀柱(右后)与父 20284
- 10佟丽娅事件是什么 佟丽娅回应 19622